【產品材質】:織物纖維
【產品顏色】:紅色,可根據客戶要求調色.
【工作環境】:高溫環境
風道纖維織物補償器主要由非金屬圈帶、隔熱材料和鋼結構件組成,其中非金屬圈帶由纖維織物、硅膠布、氟料等性能優異的非金屬材料優化結合而成,其產品強度、補償量、密封型、耐腐蝕性及壽命等性能指標均可與國外同類產品相媲美。我公司生產的纖維補償器廣泛應用于電力,冶金、環保,水泥建材,石油化工等行業的煙道、通風管道和需要隔震、軟性連接的工程中替代進口,節約了大量外匯,取得了良好的經濟效益和社會效益。
我廠研制生產的軟位移補償器集國內外同類產品之精華,結構新穎,規格齊全,選材合理,其耐溫、耐磨、耐腐蝕、絕緣和密封性能良好,是當今較為理想的管道位移補償設備。我廠生產的纖維補償器有方形、圓形、單圈式、雙圈式、角向式等結構。它們能同時吸收軸向、側向、傾斜向等各個方向的位移。其方形規格從200×400~6000×6000﹝可作更大尺寸﹞,Dn6000?蓾M足用戶各方面的要求,如需要特殊規格的產品,可按用戶要求進行設計制作。并真誠地希望各新老用戶,設計單位推薦使用我廠生產的非金屬柔性位移補償器。
風道纖維織物補償器應用范圍: 1、熱電廠(1)汽機(2)鍋爐(3)除塵;2、水泥廠;3、鋼鐵廠、熔煉爐、焚燒爐;4、熱電廠及核電站;5、空調送風系統;6、玻璃及礦棉業;7、石油化工企業;8、空氣及煤氣清潔廠;9、風機廠;10、鋁廠和碳素廠。 11. 石油化工企業及在工業中一切具有壓力及要求高度柔軟靈活性,必須安裝補償器的地方。
產品優勢: 補償熱膨脹: XB矩形風道纖維織物補償器可以在較少的尺寸范圍內提供較大的多維方向補償。
補償安裝誤差:由于管道連接中,系統誤差在所難免,XB矩形風道纖維織物補償器能較好地消除安裝誤差。
消音隔振:纖維織物,保溫棉本身具有吸音、隔絕振動傳遞的功能,能有效地減少鍋爐、風機等系統的噪音和振動。
無反推力:由于主體材料為纖維織物,無力的傳遞,用非金屬膨脹節可簡化設計。
耐高溫耐腐蝕:使用的氟塑料,有機硅材料具有良好的耐高溫行耐腐蝕等性能。
密封性能好:在各種介質作用下,具有良好的密封性。價格低廉:進口同類產品的1/2~1/3。安裝維修方便。

1、法蘭螺栓應逐步均勻地加壓擰緊,所有螺絲栓松緊度盡可能一致。使用條件惡劣的場合,除加平墊外可添加弱彈簧圈,以防螺母松動。
2、補償器與配套平焊法蘭之間應按工作溫度選用相應橡膠石棉墊片。
3、在試行時,應將補償器限位螺絲作適當調整,便于產品伸長或壓縮。
4、焊管連接時,應將限位螺絲適當松動,防止將補償器限位板拉彎或產品變形。
5、焊接作業時作蓋物遮住橡膠(織物)表面,防止焊渣損傷產品。
風道纖維織物補償器安裝要求: 1、法蘭螺栓應逐步均勻地加壓擰緊,所有螺絲栓松緊度盡可能一致。使用條件惡劣的場合,除加平墊外可加弱簧墊圈,以防螺母松動。
2、補償器與配套平焊法蘭之間應按工作溫度選用相應橡膠石棉墊片。
3、在試行時,應將補償器限位螺絲作適當調整,便于產品伸長或壓縮。
4、焊管連接時,應將限位螺絲適當松動,防止將補償器限位板拉彎或產品變形。
5、焊接作業時作遮蓋物遮住橡膠(織物)表面,防止焊渣損傷產品。
|
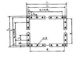
矩形產品規格
|
管道外徑
|
A
|
B
|
L1
|
L2
|
C1
|
C2
|
t
|
t1
|
t2
|
t3
|
L1
|
L2
|
n1
|
N2
|
c1/c2
|
d
|
螺栓孔數n
|
|
700×500
|
700×500
|
702
|
502
|
792
|
592
|
760
|
560
|
95
|
95
|
95
|
90
|
570
|
380
|
6
|
4
|
29/29
|
14
|
28
|
|
700×700
|
700×700
|
702
|
792
|
760
|
95
|
570
|
6
|
32
|
||||||||||
|
700×800
|
700×800
|
802
|
814
|
914
|
774
|
874
|
112
|
110
|
109
|
110
|
550
|
654
|
5
|
6
|
36/36
|
18
|
30
|
|
|
800×800
|
800×800
|
802
|
914
|
914
|
874
|
874
|
110
|
109
|
654
|
654
|
6
|
6
|
32
|
|||||
|
800×1200
|
800×1200
|
1202
|
1314
|
1274
|
116
|
115
|
1044
|
9
|
38
|
|||||||||
|
800×1600
|
800×1600
|
1602
|
1714
|
1674
|
119
|
123
|
1428
|
12
|
44
|
|||||||||
|
900×400
|
900×400
|
902
|
402
|
992
|
492
|
960
|
460
|
96
|
96
|
92
|
92
|
768
|
276
|
8
|
3
|
29/29
|
14
|
30
|
|
900×700
|
900×700
|
702
|
1014
|
814
|
974
|
774
|
124
|
121
|
110
|
112
|
726
|
550
|
6
|
5
|
36/36
|
18
|
30
|
|
|
900×1200
|
900×1200
|
1202
|
1314
|
1274
|
110
|
115
|
1044
|
9
|
38
|
|||||||||
|
1000×600
|
1000×600
|
1002
|
602
|
1114
|
714
|
1074
|
674
|
117
|
120
|
112
|
113
|
840
|
448
|
7
|
4
|
30
|
||
|
1000×700
|
1000×700
|
702
|
814
|
774
|
110
|
112
|
550
|
5
|
32
|
|||||||||
|
1000×800
|
1000×800
|
802
|
914
|
874
|
109
|
110
|
654
|
6
|
34
|
|||||||||
|
1000×1000
|
1000×1000
|
1002
|
1114
|
1074
|
120
|
117
|
840
|
7
|
36
|
|||||||||
|
1200×600
|
1200×600
|
1202
|
602
|
1314
|
714
|
1274
|
674
|
115
|
116
|
112
|
113
|
1044
|
448
|
|
4
|
34
|
||
|
1200×700
|
1200×700
|
702
|
814
|
774
|
110
|
112
|
550
|
5
|
|
36
|
||||||||
|
1200×800
|
1200×800
|
802
|
914
|
874
|
115
|
116
|
654
|
9
|
6
|
|
|
38
|
||||||
|
1200×1000
|
1200×1000
|
1002
|
1114
|
1074
|
120
|
117
|
840
|
7
|
40
|
|||||||||
|
1200×1200
|
1200×1200
|
1202
|
1314
|
1274
|
116
|
115
|
1044
|
9
|
44
|
|||||||||
|
1400×700
|
1400×700
|
1402
|
702
|
1514
|
814
|
1474
|
774
|
110
|
114
|
110
|
112
|
1254
|
550
|
11
|
5
|
|
40
|
|
|
1400×800
|
1400×800
|
802
|
914
|
874
|
109
|
110
|
654
|
6
|
|
42
|
||||||||
|
1400×900
|
1400×900
|
902
|
1014
|
974
|
121
|
124
|
726
|
6
|
|
|||||||||
|
1400×1000
|
1400×1000
|
1002
|
1114
|
1074
|
120
|
117
|
840
|
7
|
|
44
|
||||||||
|
1400×1200
|
1400×1200
|
|
1202
|
|
1314
|
|
1274
|
|
|
116
|
115
|
1044
|
9
|
|
48
|
|||
|
1500×800
|
1500×800
|
1502
|
802
|
1614
|
914
|
1574
|
874
|
116
|
122
|
109
|
110
|
1342
|
654
|
12
|
6
|
|
|
42
|
|
1500×900
|
1500×900
|
902
|
1014
|
974
|
121
|
124
|
|
726
|
|
|
|
|
|
|||||
|
1500×1000
|
1500×1000
|
1202
|
1114
|
1074
|
120
|
117
|
840
|
7
|
44
|
|||||||||
|
1500×1200
|
1500×1200
|
1202
|
1314
|
1274
|
116
|
115
|
1044
|
9
|
48
|
|||||||||
|
1600×1000
|
1600×1000
|
1602
|
1002
|
1714
|
114
|
1674
|
1074
|
117
|
120
|
120
|
117
|
1440
|
840
|
|
7
|
36/36
|
18
|
46
|
|
1600×1200
|
1600×1200
|
1202
|
1314
|
1274
|
116
|
115
|
1044
|
|
9
|
50
|
||||||||
|
1600×1400
|
1600×1400
|
1402
|
1728
|
1528
|
1678
|
1478
|
139
|
140
|
134
|
136
|
1400
|
1206
|
10
|
38/38
|
22
|
46
|
||
|
1600×1600
|
1600×1600
|
1602
|
1728
|
1678
|
140
|
139
|
1400
|
10
|
48
|
|||||||||
|
1800×900
|
1800×900
|
|
902
|
1914
|
1014
|
1874
|
974
|
118
|
117
|
121
|
124
|
1638
|
726
|
14
|
6
|
|
|
|
|
1800×1000
|
1800×1000
|
1002
|
1114
|
1074
|
120
|
117
|
|
840
|
|
7
|
36/36
|
18
|
50
|
|||||
|
1800×1200
|
1800×1200
|
1202
|
|
1328
|
|
1278
|
|
|
142
|
142
|
1608
|
994
|
12
|
46
|
||||
|
1800×1400
|
1800×1400
|
1802
|
1402
|
1802
|
1528
|
1878
|
1478
|
135
|
134
|
134
|
136
|
1026
|
9
|
50
|
||||
|
1800×1800
|
1800×1800
|
1802
|
1928
|
1878
|
135
|
1608
|
12
|
56
|
||||||||||
|
2000×1000
|
2000×1000
|
1004
|
1130
|
1080
|
135
|
135
|
810
|
6
|
46
|
上一篇:圓形纖維織物補償器
下一篇:BHKXW型大波紋板盒限位式補償器






